Krom Boomssloot
Amsterdam
·
Approx. 42 m2
·
2 rooms
€ 420.000,-
Description
Krom Boomssloot, Amsterdam / Nieuwmarkt
Renovated in 2016, this two-room flat is located in a listed building in a fantastic location in the heart of Amsterdam!
The two-room flat is located on the first floor of this characteristic corner building, has a practical layout and has been renovated. Krom Boomssloot is located near Nieuwmarkt, on a charming canal in the characteristic Lastage neighbourhood, which is remarkably quiet despite its central location.
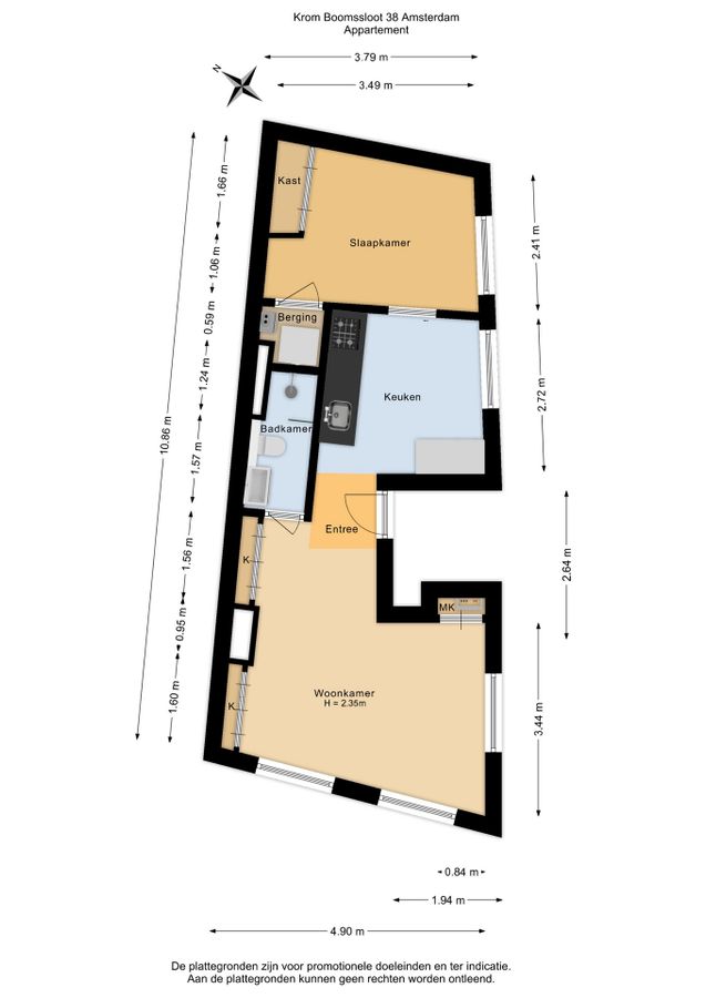
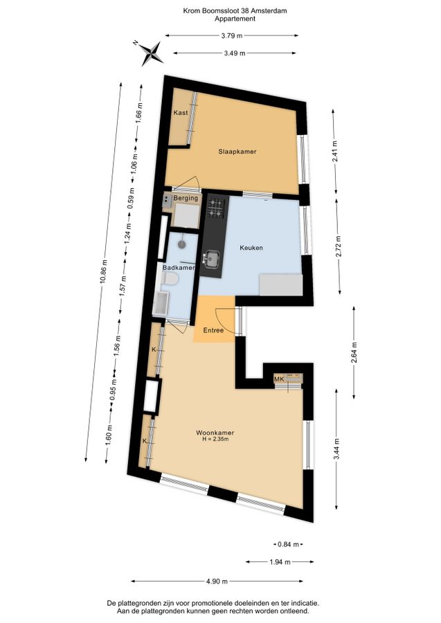
Layout
The central entrance is shared with the apartment above. The stairs lead to the front door, which opens onto the comfortable living room. This is located on the corner of Krom Boomssloot and Dijkstraat and has plenty of natural light thanks to the many windows. The living room has a large built-in cupboard wall for extra storage space.
The kitchen is located on the right-hand side of the flat and is divided into two sections. The kitchen is equipped with various built-in appliances, including a 4-burner gas stove, dishwasher, combi-oven and refrigerator. There is also plenty of storage space. There is room for a cosy round dining table and the window offers a view of the charming street.
Next to the kitchen is the bedroom, which has space for a double bed and a wardrobe. There is also a storage room with the central heating system and the connection for the washing machine. Directly behind the kitchen is the modern bathroom, equipped with a floating toilet, a walk-in shower with glass wall and a washbasin with cabinet.
Homeowners' Association and Building
The Homeowners' Association consists of three members: Krom Boomssloot 38 and 40, and Dijkstraat 49. The Homeowners' Association is financially sound and has a long-term maintenance plan. In 2016, the building underwent extensive renovation, including foundation repairs. The foundations were also reinforced by means of a structural connection with the neighbours. During the renovation, insulation was also installed in the facades, roof and floors, and insulating monument glass was installed. The service costs are €103 per month. The ground lease has been bought out until 2064.
Location
The flat is located in the Lastagebuurt, a surprising neighbourhood in the heart of Amsterdam. The neighbourhood has several characteristic and quiet streets that reflect the authentic character of Amsterdam. The Nieuwmarkt, including the metro station of the same name, is within walking distance. Supermarkets and specialty shops are nearby, and Central Station is also within 10 minutes' reach.
Details
- Listed building
- Completely renovated in 2016, including foundations
- Financially sound owners' association with long-term maintenance plan
- Quiet and central location
- Ground rent paid up to 31 December 2064
- Service charges €103 per month
- Energy label D
DISCLAIMER
This advertisement has been compiled with care and is based on information available to the estate agent at the time of writing. Nevertheless, it may contain unintentional inaccuracies and the dimensions given may differ (marginally). No rights can be derived from the content of this advertisement. The buyer must investigate the possibilities of the intended use and the condition of the property.
Renovated in 2016, this two-room flat is located in a listed building in a fantastic location in the heart of Amsterdam!
The two-room flat is located on the first floor of this characteristic corner building, has a practical layout and has been renovated. Krom Boomssloot is located near Nieuwmarkt, on a charming canal in the characteristic Lastage neighbourhood, which is remarkably quiet despite its central location.
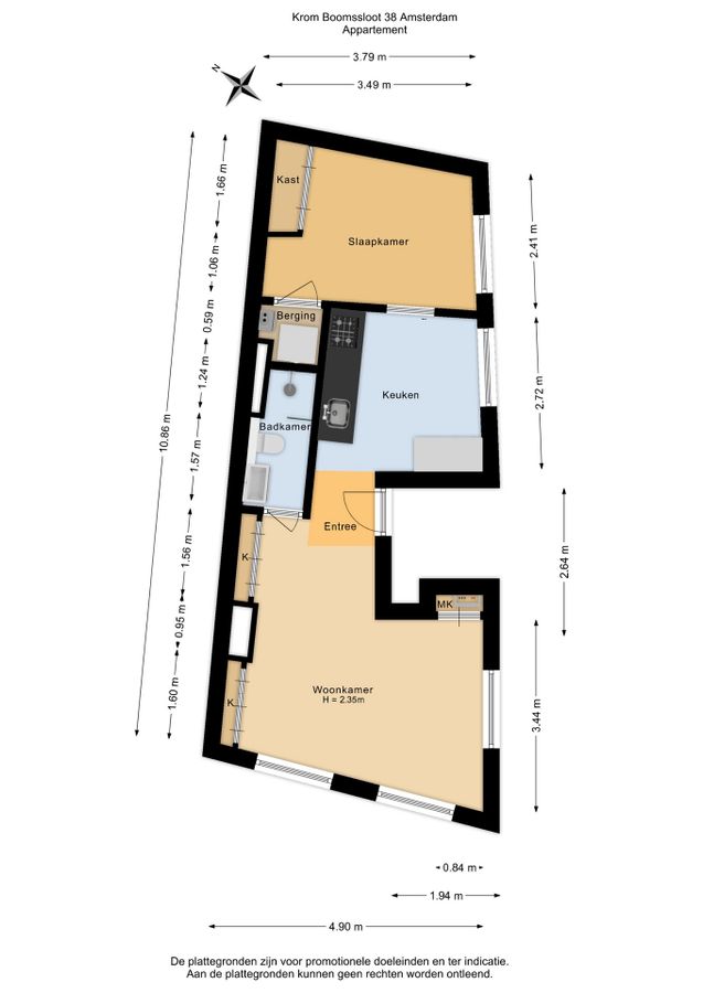
Layout
The central entrance is shared with the apartment above. The stairs lead to the front door, which opens onto the comfortable living room. This is located on the corner of Krom Boomssloot and Dijkstraat and has plenty of natural light thanks to the many windows. The living room has a large built-in cupboard wall for extra storage space.
The kitchen is located on the right-hand side of the flat and is divided into two sections. The kitchen is equipped with various built-in appliances, including a 4-burner gas stove, dishwasher, combi-oven and refrigerator. There is also plenty of storage space. There is room for a cosy round dining table and the window offers a view of the charming street.
Next to the kitchen is the bedroom, which has space for a double bed and a wardrobe. There is also a storage room with the central heating system and the connection for the washing machine. Directly behind the kitchen is the modern bathroom, equipped with a floating toilet, a walk-in shower with glass wall and a washbasin with cabinet.
Homeowners' Association and Building
The Homeowners' Association consists of three members: Krom Boomssloot 38 and 40, and Dijkstraat 49. The Homeowners' Association is financially sound and has a long-term maintenance plan. In 2016, the building underwent extensive renovation, including foundation repairs. The foundations were also reinforced by means of a structural connection with the neighbours. During the renovation, insulation was also installed in the facades, roof and floors, and insulating monument glass was installed. The service costs are €103 per month. The ground lease has been bought out until 2064.
Location
The flat is located in the Lastagebuurt, a surprising neighbourhood in the heart of Amsterdam. The neighbourhood has several characteristic and quiet streets that reflect the authentic character of Amsterdam. The Nieuwmarkt, including the metro station of the same name, is within walking distance. Supermarkets and specialty shops are nearby, and Central Station is also within 10 minutes' reach.
Details
- Listed building
- Completely renovated in 2016, including foundations
- Financially sound owners' association with long-term maintenance plan
- Quiet and central location
- Ground rent paid up to 31 December 2064
- Service charges €103 per month
- Energy label D
DISCLAIMER
This advertisement has been compiled with care and is based on information available to the estate agent at the time of writing. Nevertheless, it may contain unintentional inaccuracies and the dimensions given may differ (marginally). No rights can be derived from the content of this advertisement. The buyer must investigate the possibilities of the intended use and the condition of the property.
Details of this property
- PlaceAmsterdam
- RegionAmsterdam
- Asking price€ 420.000,-
- Price per m2€ 10000
- Type of homeUpstairs apartment
- Building typeResale property
- Year of construction0
- SurfaceApprox. 42 m2
- ContentApprox. 132 m3
- Number of rooms2
- Bathrooms1
- Available fromImmediately
- OutsideNone
- StorageNone
- Storage spaceApprox. 0 m2
- Energy LabelD
- Number of floors1
- Bathroom facilitiesShower, Washbasin furniture
- Specific detailsMonumental building,
- Type of roofGable roof
- Additional facilitiesMechanical ventilation
- IsolationRoof insulation, Wall insulation, Floor insulation
- Cadastral informationAMSTERDAM G 9336
- HeatingBoiler
- Hot waterBoiler
- Ownership situationProperty charged with leasehold
- ParkingPaid parking, Parking permit





















































































































