Benjamin Jonsonlaan
Hoofddorp
·
Approx. 141 m2
·
5 rooms
€ 3.000,-
Description
Benjamin Jonsonlaan, Hoofddorp (approx. 140m2) €3,300 Excl. utilities
Looking for a furnished, move-in ready home with all the modern comforts and sustainable features of today? Then be sure to visit this modern terraced house in the popular Tudorpark neighborhood!
Tudorpark is known for its distinctive English Tudor-style architecture and great variety of homes. The location is excellent: just a short distance from Toolenburg and Floriande shopping centers, several primary and secondary schools, childcare facilities, sports clubs and recreational areas. The Toolenburger Plas lake and Park21 are also within walking or cycling distance.
LAY-OUT
Ground floor: Entrance hall with meter cupboard, modern floating toilet with hand basin and a storage space housing the heat pump. The bright living room features a practical storage closet under the stairs and French doors leading to the backyard. The open kitchen is finished in a light, neutral color scheme and equipped with built-in appliances, including an induction hob, combi steam oven/regular oven, extractor hood, fridge with freezer compartment, and dishwasher.
First floor: Landing with access to three bedrooms and the bathroom. The modern, fully tiled bathroom is fitted with a stylish vanity unit, spacious walk-in shower, floating toilet and design radiator.
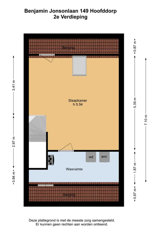
Second floor: A spacious attic with a ceiling height of approximately 5.5 meters offers plenty of possibilities — ideal for creating an extra bedroom, home office or hobby room. The technical installations are located here as well, including the heat recovery system (WTW), along with connections for a washing machine and dryer.
DETAILS
- Modern house, built in 2022
- Energy label A++++, equipped with solar panels and full underfloor heating
- Fully furnished
- Available immediately for an indefinite period (minimum rental term of 12 months)
- Utilities and TV/internet to be arranged and paid by tenant
- Pets upon consultation
Looking for a furnished, move-in ready home with all the modern comforts and sustainable features of today? Then be sure to visit this modern terraced house in the popular Tudorpark neighborhood!
Tudorpark is known for its distinctive English Tudor-style architecture and great variety of homes. The location is excellent: just a short distance from Toolenburg and Floriande shopping centers, several primary and secondary schools, childcare facilities, sports clubs and recreational areas. The Toolenburger Plas lake and Park21 are also within walking or cycling distance.
LAY-OUT
Ground floor: Entrance hall with meter cupboard, modern floating toilet with hand basin and a storage space housing the heat pump. The bright living room features a practical storage closet under the stairs and French doors leading to the backyard. The open kitchen is finished in a light, neutral color scheme and equipped with built-in appliances, including an induction hob, combi steam oven/regular oven, extractor hood, fridge with freezer compartment, and dishwasher.
First floor: Landing with access to three bedrooms and the bathroom. The modern, fully tiled bathroom is fitted with a stylish vanity unit, spacious walk-in shower, floating toilet and design radiator.
Second floor: A spacious attic with a ceiling height of approximately 5.5 meters offers plenty of possibilities — ideal for creating an extra bedroom, home office or hobby room. The technical installations are located here as well, including the heat recovery system (WTW), along with connections for a washing machine and dryer.
DETAILS
- Modern house, built in 2022
- Energy label A++++, equipped with solar panels and full underfloor heating
- Fully furnished
- Available immediately for an indefinite period (minimum rental term of 12 months)
- Utilities and TV/internet to be arranged and paid by tenant
- Pets upon consultation
Details of this property
- PlaceHoofddorp
- RegionHaarlem
- Price€ 3.000,-
- Type of homeTown house
- SurfaceApprox. 141 m2
- Number of rooms5
- Available fromImmediately
- InteriorFully furnished
- OutsideGarden
- Surface outdoorApprox. 65 m2
- StorageSeparate storage
- Energy LabelA+PLUS





























































































