Maluslaan
Amstelveen
·
ca. 175 m2
·
5 kamers
€ 3.750,-
Beschrijving
Maluslaan/Amstelveen (ca. 175 m2) €3750 excl. G/W/E
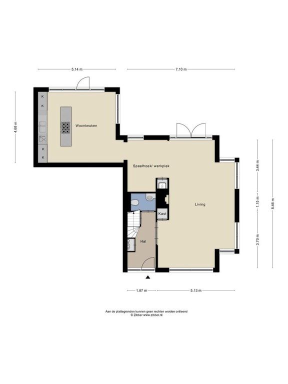
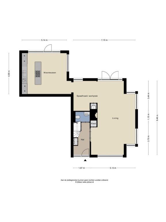
Centraal in Amstelveen gelegen verrassend ruime (ca. 175m2) sfeervolle half-vrijstaande gezinswoning met een aan de tuinzijde uitgebouwde woonkeuken en aan de zijkant uitgebouwde woonkamer. De voor-, zij- en riante zonnige achtertuin beschikt over meerdere terrassen en twee ruime schuren.
Dit is allesbehalve een “standaard” hoekwoning; het buurpand is deels bij deze woning getrokken inclusief de achtertuin! Derhalve is een zonnige achtertuin van ca. 15 meter breed gecreëerd. De achterzijde van de woning heeft een breedte van ruim 12 meter!
Indeling:
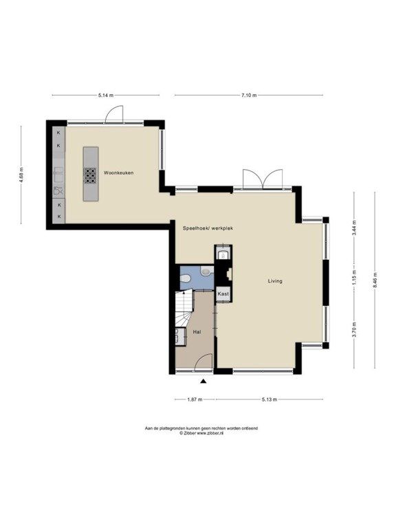
Entree, hal, meterkast, trapkast, toilet met fontein, openslaande deuren bieden toegang tot de royale uitgebouwde lichte living met veel raampartijen, eiken vloer, open haard met fraaie schouw, werkplek/ kinderhoek met kastruimte en openslaande deuren naar de tuin. Riante gezellige uitgebouwde woonkeuken v.v. luxe inbouw apparatuur o.a; kookeiland met fornuis en dubbele afzuigkap, vaatwasser, wijnklimaatkast, dubbele koelkast, vriezer, vloerverwarming en openslaande deuren naar de tuin. In de woonkeuken is genoeg ruimte voor een grote eettafel.
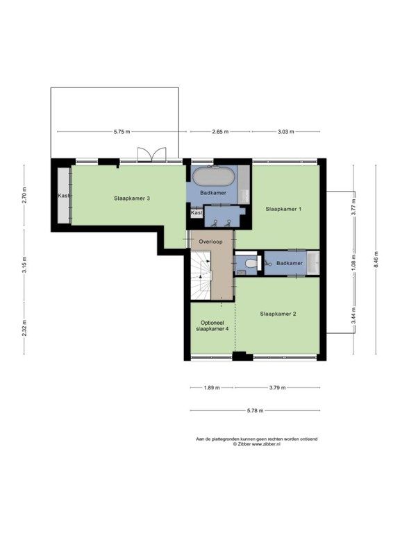
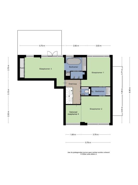
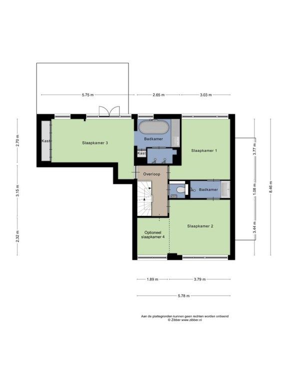
1e verdieping: overloop, toilet met fontein, slaapkamer aan de achterzijde met vaste kastenwand, airco en openslaande deuren, moderne luxe badkamer v.v. ligbad, wastafel, dubbele inloopdouche met regendouche en vloerverwarming. Slaapkamer aan de achterzijde met toegang tot de 2e badkamer v.v. douche en wastafel. Slaapkamer aan de voorzijde met tevens toegang tot de 2e badkamer.
2e verdieping: overloop, bergruimte, ruime slaapkamer voorzien van 2 grote dakkapellen en wasruimte.
Op loopafstand bevindt zich het romantische 'Oude Dorp' voor een gezellig drankje of een hapje eten in een van de vele restaurants. Binnen 5 minuten fietsen bent u in het Amsterdamse Bos (de Poel) of het winkelcentrum van Amstelveen (Het Stadshart). Vlak bij de woning is een kinderspeeltuin en om de hoek is er een zwembad, een sportschool en een sportcomplex. In de nabijheid zijn er kinderdagopvanglocaties, diverse scholen, waaronder de Internationale School. Voor uw dagelijkse boodschappen kunt u terecht bij het nabijgelegen winkelcentrum Van der Hooplaan (met diverse speciaalzaken) en er zijn ook gezellige cafés in de buurt waaronder het bruisende Oude Dorp. Of u maakt een wandeling om "de Poel". Verschillende sportvoorzieningen als voetbalclubs, tennisclubs, hockey clubs, maar ook een overdekt zwembad en het moderne sportcentrum Health City zijn vlakbij. Zowel met de auto als met het openbaar vervoer is de woning zeer gemakkelijk te bereiken. Op 5 minuten lopen goede tram-, metro- en busverbindingen met o.m. Amsterdam en Schiphol. Binnen enkele minuten bent u met de auto op de ring A10 of de A9, binnen 15 minuten op Schiphol en met de tram binnen 20 minuten op het WTC Amsterdam.
Centraal in Amstelveen gelegen verrassend ruime (ca. 175m2) sfeervolle half-vrijstaande gezinswoning met een aan de tuinzijde uitgebouwde woonkeuken en aan de zijkant uitgebouwde woonkamer. De voor-, zij- en riante zonnige achtertuin beschikt over meerdere terrassen en twee ruime schuren.
Dit is allesbehalve een “standaard” hoekwoning; het buurpand is deels bij deze woning getrokken inclusief de achtertuin! Derhalve is een zonnige achtertuin van ca. 15 meter breed gecreëerd. De achterzijde van de woning heeft een breedte van ruim 12 meter!
Indeling:
Entree, hal, meterkast, trapkast, toilet met fontein, openslaande deuren bieden toegang tot de royale uitgebouwde lichte living met veel raampartijen, eiken vloer, open haard met fraaie schouw, werkplek/ kinderhoek met kastruimte en openslaande deuren naar de tuin. Riante gezellige uitgebouwde woonkeuken v.v. luxe inbouw apparatuur o.a; kookeiland met fornuis en dubbele afzuigkap, vaatwasser, wijnklimaatkast, dubbele koelkast, vriezer, vloerverwarming en openslaande deuren naar de tuin. In de woonkeuken is genoeg ruimte voor een grote eettafel.
1e verdieping: overloop, toilet met fontein, slaapkamer aan de achterzijde met vaste kastenwand, airco en openslaande deuren, moderne luxe badkamer v.v. ligbad, wastafel, dubbele inloopdouche met regendouche en vloerverwarming. Slaapkamer aan de achterzijde met toegang tot de 2e badkamer v.v. douche en wastafel. Slaapkamer aan de voorzijde met tevens toegang tot de 2e badkamer.
2e verdieping: overloop, bergruimte, ruime slaapkamer voorzien van 2 grote dakkapellen en wasruimte.
Op loopafstand bevindt zich het romantische 'Oude Dorp' voor een gezellig drankje of een hapje eten in een van de vele restaurants. Binnen 5 minuten fietsen bent u in het Amsterdamse Bos (de Poel) of het winkelcentrum van Amstelveen (Het Stadshart). Vlak bij de woning is een kinderspeeltuin en om de hoek is er een zwembad, een sportschool en een sportcomplex. In de nabijheid zijn er kinderdagopvanglocaties, diverse scholen, waaronder de Internationale School. Voor uw dagelijkse boodschappen kunt u terecht bij het nabijgelegen winkelcentrum Van der Hooplaan (met diverse speciaalzaken) en er zijn ook gezellige cafés in de buurt waaronder het bruisende Oude Dorp. Of u maakt een wandeling om "de Poel". Verschillende sportvoorzieningen als voetbalclubs, tennisclubs, hockey clubs, maar ook een overdekt zwembad en het moderne sportcentrum Health City zijn vlakbij. Zowel met de auto als met het openbaar vervoer is de woning zeer gemakkelijk te bereiken. Op 5 minuten lopen goede tram-, metro- en busverbindingen met o.m. Amsterdam en Schiphol. Binnen enkele minuten bent u met de auto op de ring A10 of de A9, binnen 15 minuten op Schiphol en met de tram binnen 20 minuten op het WTC Amsterdam.
Kenmerken van de woning
- PlaatsAmstelveen
- RegioAmstelveen
- Prijs€ 3.750,-
- Soort woningEengezinswoning
- Woonoppervlakteca. 175 m2
- Aantal kamers5
- Beschikbaar perPer direct
- OpleveringsniveauGestoffeerd
- BuitenruimteTuin
- Opp. buitenruimteca. 156 m2
- BergruimteLosstaande berging
- EnergielabelE





































































































